




Listed By Atlantic Shores ERA Powered
The Land for Sale located at Tbd Miramar Avenue, Fort Pierce, Florida 34951 is currently for sale. Tbd Miramar Avenue, Fort Pierce, Florida 34951 is listed for $5,000,000.
$5,000,000 USD
Land for Sale, Tbd Miramar Avenue, Fort Pierce, Florida 34951
- MLS#RX-11089690
- Minimum sellable space
38,202 m² (9.44 ac)
Property features
Property
- Location: SubdivisionIn The City
Lot/Land
- Land/Lot size:
38,202 m² (9.44 ac) - Lot description: Cleared
Utilities
- Other utilities: Electric
Description
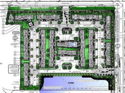
Introducing an exceptional opportunity for multifamily residential development. This prime property of 9.44 acres boasts an unbeatable location just minutes away from beach access and offers unparalleled convenience being only 5 miles east of I-95 and Florida's Turnpike. With its coveted zoning of RM-9, this parcel presents a range of possibilities for developers seeking to create a thriving community. Site plans have been approved and ready to submit for permitting. St. Lucie county has granted development order extension for this project out until Oct 3rd, 2028. The potential for this property is truly impressive, with the current plans allowing for the construction of 84 apartments or townhouses. Water and sewer services are readily available through the city.
Location
Tbd Miramar Avenue, Fort Pierce, Florida 34951